型号:W0P124F46P
连接方式:法兰连接
适用温度:-40℃~140℃
阀体材质:碳钢、不锈钢
衬氟材料:PTFE、PFA、FEP、ETFE、CETFE、PVF2
适用介质:强酸强碱、液氯,硫酸,盐酸,氟盐等腐蚀性介质
产品概述
玮控气动衬氟调节主要应用在生产过程中有强酸强碱、液氯,硫酸,盐酸,氟盐等腐蚀性介质中。
阀体S型流线通道设计,内壁光滑且截面相等。压力损失小、流量大、流动平稳。在阀体通道衬入衬上PTFE聚四氟乙烯、PFA、ETFE等耐腐蚀、耐老化的材料,达到耐腐效果。
1. 阀笼采用压紧阀座设计,解决了传统的螺丝拧入式阀座拆卸困难,泄漏量大等问题。
2. 采用流开式设计,介质趋向于阀门开启的方向,小开度可控性好,流量特性畸变小(根据工况要求可选择降噪音、抗气蚀的特殊阀笼)
3. 阀内组件材料可根据不同流体情况,进行相应处理,对于控制空化流体、含有固体颗粒的流体以及高温、高压场合,进行硬化处理,延长阀门的使用寿命。
4. 气动调节阀含定位器提高阀门的位置**度,确保阀门按照调节阀信号实现正确定位。
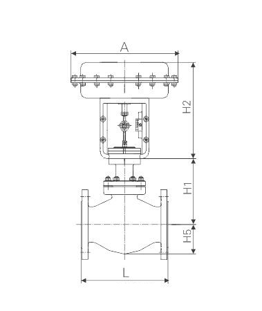
产品尺寸图

外形尺寸
|
DN |
20 |
25 |
32 |
40 |
50 |
65 |
80 |
100 |
125 |
150 |
200 |
|
|
H1 |
315 |
410 |
420 |
420 |
420 |
550 |
570 |
570 |
690 |
705 |
785 |
|
|
H2 |
55 |
60 |
70 |
75 |
80 |
90 |
105 |
120 |
140 |
150 |
200 |
|
|
H3 |
100 |
110 |
130 |
140 |
150 |
165 |
180 |
195 |
230 |
250 |
350 |
|
|
ФA |
310 |
395 |
500 |
|||||||||
|
L |
PN16 PN40 |
150 |
160 |
180 |
200 |
230 |
290 |
310 |
350 |
400 |
480 |
600 |
|
PN64 |
230 |
260 |
300 |
340 |
380 |
430 |
500 |
550 |
650 |
|||
|
D |
PN16 |
105 |
115 |
140 |
150 |
165 |
185 |
200 |
220 |
250 |
285 |
340 |
|
PN40 |
105 |
115 |
140 |
150 |
165 |
185 |
200 |
235 |
270 |
300 |
375 |
|
|
PN64 |
130 |
140 |
155 |
170 |
180 |
205 |
215 |
250 |
295 |
345 |
415 |
|
|
D1 |
PN16 |
75 |
85 |
100 |
110 |
125 |
145 |
160 |
180 |
210 |
240 |
295 |
|
PN40 |
75 |
85 |
100 |
110 |
125 |
145 |
160 |
190 |
220 |
250 |
320 |
|
|
PN64 |
90 |
100 |
118 |
125 |
135 |
160 |
170 |
200 |
240 |
280 |
345 |
|
|
b |
PN16 |
16 |
18 |
20 |
22 |
24 |
||||||
|
PN40 |
16 |
18 |
20 |
22 |
24 |
26 |
28 |
34 |
||||
|
PN64 |
20 |
22 |
24 |
26 |
28 |
30 |
32 |
36 |
38 |
44 |
||
|
n-d |
PN16 |
4-14 |
4-18 |
8-18 |
8-22 |
12-22 |
||||||
|
PN40 |
4-14 |
4-18 |
8-18 |
8-22 |
8-26 |
12-30 |
||||||
|
PN64 |
4-18 |
4-23 |
8-23 |
8-25 |
8-30 |
8-34 |
12-34 |
|||||
|
F1×D2 |
PN16 PN40 PN64 |
2×56 |
3×65 |
3×76 |
3×84 |
3×99 |
3×118 |
3×132 |
3×156 |
3×184 |
3×211 |
3×266 |
|
F2×D3 |
PN16 PN40 |
3×51 |
3×58 |
3×66 |
3×76 |
3×84 |
3×99 |
3×118 |
3×132 |
3×156 |
3.5×204 |
3.5×260 |
|
PN64 |
4×51 |
4×58 |
4×66 |
4×76 |
4×88 |
4×110 |
4×121 |
4.5×150 |
4.5×176 |
4.5×204 |
4.5×260 |
|