通径范園( mm): 40—700
压力等级( Mpa) :1.0—32.0 150LB—1500LB
连接方式:法兰 焊接
阀体材质:WCB 304 316 316L
驱动方式:气动 电动
控制方式:开关式 调节式
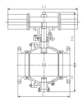
产品尺寸图
主要外型尺寸
|
公称通径 DN(mm) |
尺 寸(mm) | 执行器型号 | |||||||||||
| 1.6MPa | 2.5MPa | 4.0MPa | |||||||||||
| L | D | D1 | z-φd | L | D | D1 | z-φd | L | D | D1 | z-φd | ||
| 50 | 203 | 160 | 125 | 4-18 | 216 | 160 | 125 | 4-18 | 216 | 160 | 125 | 4-18 |
可选配 DA/SR、 QGSY、 SY-CH、GTD/GTE AW/AWS、 SY-YD、 系列执行器 (以上选配 仅供参考具 体选区用根 据实际要求) |
| 65 | 222 | 180 | 146 | 4-18 | 241 | 180 | 145 | 8-18 | 241 | 180 | 145 | 8-18 | |
| 80 | 241 | 195 | 160 | 8-18 | 283 | 195 | 160 | 8-18 | 283 | 195 | 160 | 8-18 | |
| 100 | 305 | 215 | 180 | 8-18 | 305 | 230 | 190 | 8-23 | 305 | 230 | 190 | 8-23 | |
| 125 | 356 | 245 | 210 | 8-18 | 381 | 270 | 220 | 8-25 | 381 | 270 | 220 | 8-25 | |
| 150 | 394 | 280 | 240 | 8-23 | 403 | 300 | 250 | 8-25 | 403 | 300 | 250 | 8-25 | |
| 200 | 457 | 335 | 295 | 12-23 | 502 | 360 | 310 | 12-25 | 502 | 375 | 320 | 12-30 | |
| 250 | 533 | 405 | 355 | 12-25 | 586 | 425 | 370 | 12-30 |
|
|
|
|
|
| 300 | 610 | 460 | 410 | 12-25 | 648 | 485 | 430 | 16-30 |
|
|
|
|
|
| 350 | 686 | 520 | 470 | 16-25 | 762 | 550 | 490 | 16-34 |
|
|
|
|
|
| 400 | 762 | 580 | 525 | 16-30 | 838 | 610 | 550 | 16-34 |
|
|
|
|
|
| 450 | 864 | 640 | 585 | 20-30 | 914 | 660 | 600 | 20-34 |
|
|
|
|
|
| 500 | 914 | 705 | 650 | 20-34 | 991 | 730 | 660 | 20-41 |
|
|
|
|
|