型号:Q681F-10S
连接方式:由任连接
适用温度:-40℃~140℃
阀体材质:CPVC、UPVC、PVDF、FRPP、PPH等
密封材质:EPDM、PTFE
适用介质:水、空气、油类、腐蚀性化学液体
产品概述
1. 玮控气动双由任球阀,双活接设计、安装快速、检修方便。
2. 气动AT大扭矩执行器,加厚铝合金氧化处理、扭矩更大,启闭迅速,开关位置**。
3. 整体加厚,耐酸碱抗老化。适用于耐腐蚀,压力≤1mpa的场合。阀门采用CPVC、UPVC、PVDF、FRPP、PPH等塑料注塑件组装成型。降低用户成本,减轻管道重要。
4. 玮控塑料阀门可替代GF、盖米、斯德宝等各类进口品牌。在废水处理、新能源客户中得到广泛使用。
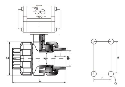
产品尺寸图

外形尺寸
|
公称外径dn |
公称通径DN |
I | D | L | F | M | Q |
扭力(N●M) |
| 20 | 15 | 22 | 56 | 103 | 31 | - |
2xM6 |
2 |
| 25 | 20 | 22 | 63 | 117 | 33 | - |
2xM6 |
3 |
| 32 | 25 | 25 | 75 | 133 | 40 | - |
2xM6 |
4 |
| 40 | 32 | 28 | 88 | 149 | 52 | - |
2xM8 |
6 |
| 50 | 40 | 31 | 99 | 165 | 52 | - |
2xM8 |
8 |
| 63 | 50 | 38 | 117 | 190 | 70 | - |
2xM8 |
12 |
| 75 | 65 | 44 | 141 | 235 | 84 | 45 |
4xM10 |
18 |
| 90 | 80 | 51 | 164 | 270 | 84 | 45 |
4xM10 |
26 |
| 110 | 100 | 61 | 202 | 320 | 121 | 49 |
4xM10 |
35 |